di Elisabetta Pertoso e Giada Pizzorni

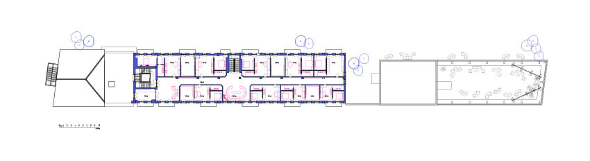
WE.HOME nasce come un luogo di incontro e di relazione in un contesto in cui molte persone LGBTQIA+ affrontano ancora precarietà abitativa, isolamento e discriminazioni.
L’edificio diventa un’infrastruttura in grado di offrire sicurezza, stabilità e nuove possibilità di connessione, promuovendo legami tra chi lo abita e con il quartiere circostante. Radicato nel tessuto urbano, questo nuovo spazio si apre alla città attraverso un piano terra pubblico e sempre attivo, mentre gli spazi residenziali, con affitti a canone calmierato e gestione partecipata, permettono ai residenti di contribuire attivamente alla vita della comunità.
Privato e collettivo si intrecciano fluidamente: le persone possono vivere i propri spazi in autonomia, ma partecipare insieme a momenti di socialità.
Il progetto va oltre il semplice abitare, trasformando l’edificio in una soglia attiva per il quartiere, uno spazio inclusivo che offre servizi, presidi sociali e occasioni di incontro.
ABITARE CON CURA. Per un abitare collettivo e collaborativo a Torino
Corso al Biennio in Interior Design, IED Torino
<– Torna alla pagina Abitare con cura












